OSA, a deep dive into the preserved nature of Costa Rica, CR

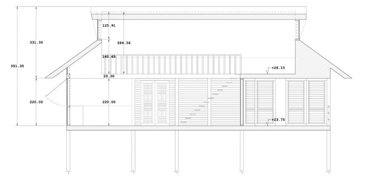
Sustainability and stilts. Two words not usually found in the same sentence. Yet this wooden cabin on stilts in the Costa Rica countryside is inextricably linked to nature and was built entirely by local craftsmen using traditional techniques and materials.

Sustainability and stilts. Two words not usually found in the same sentence. Yet this wooden cabin on stilts in the Costa Rica countryside is inextricably linked to nature and was built entirely by local craftsmen using traditional techniques and materials.

Anything that could not be sourced locally in this back country corner of Costa Rica, such as toilets or solar panels, was brought in by shipping container. A shipping container that has remained on site and now serves as storage for surf boards and for the technology needed to support the photovoltaic panels. Overlooking the ocean, this protected perch offers a comfortable shelter which is completely open to the surrounding natural environment and is without the “normal” amenities. The entire project is remarkable in terms of its carbon footprint. From the concept stage, and throughout the building works, AWAA made only two visits to the site - once at the design stage and once at provisional handover. One of the clients splits his time between San José, Tamarindo and Osa, where he works as a pilot for a coastal conservation and marine monitoring project. His timetable meant he was able to follow the construction works and report progress to AWAA via the internet, enabling us to supervise work remotely. We must remember that this ‘surf shack’ is completely self-sufficient. It’s not connected to the grid: electricity is produced by solar panels and water is pumped from a spring. Its mini sewage treatment plant and its floating construction, devoid of invasive foundations, have enabled us to build a dwelling that is a tropical grail of exotic, comfortable and exquisitely integrated into its environment. Pura vida.

http://www.osamatapalo.com

https://vimeo.com/103826134