VAUXHALL, a place to read, write and dream, BE

This spot is a secluded oasis right in the heart of Brussels. Our client wanted to use this wonderful location as an office, a frame for his collection of strip cartoons, a library for his numerous volumes and as a place for political and cultural meetings.

This spot is a secluded oasis right in the heart of Brussels. Our client wanted to use this wonderful location as an office, a frame for his collection of strip cartoons, a library for his numerous volumes and as a place for political and cultural meetings.

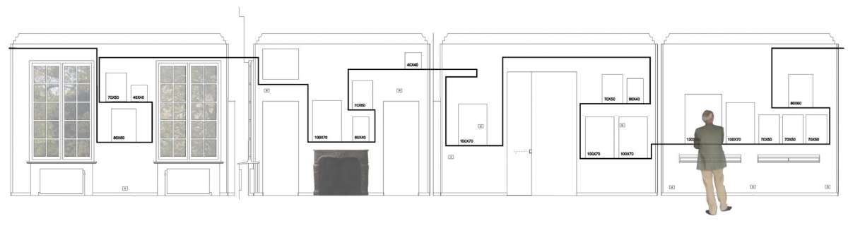
Working with our client, we decided to adopt a universally symbolic approach. The plan developed in the shape of a cross with each of the arms representing a specific destination. A central hub represents the earth as the centre point from where various ‘diplomatic’ journeys can be taken. Above the earth is the sky, where the light constantly varies. There is no window in this observatory, but the ceiling is illuminated with variable colour and intensity. To the right is the office, which has a cosy, inward-looking feel achieved by the use of rich American walnut. Opposite, an open space where each month a selection of original artwork is displayed. Facing the entrance to the observatory, the client’s collection of strip cartoon albums is stored on shelves that are designed in the form of giant page layouts. Each frame contains shelving from which futuristic fantasy adventures arise amid childhood memories. At the front of the building, the library is constantly illuminated with shafts of daylight; fitting for a place intended to enlighten. This building provides space both for personal contemplation and for sharing ideas. A place to read, write and, perchance, to dream.

“14000 books create a critical mass; can one fathom the amount of characters these books, essentially of literature, history and politics may contain? And possibly release? Hundreds of thousands. So to tame the books and all their stories, large empty spaces needed to be build, so as to allow for mediation and meditation. A world for many drawings also, some friends and a single reader.I remember less the works than the long conversations we had with AWAA. The main room was suddenly called the Observatory, though it has no windows; it says it all. Less a library for books than a study for the reader. The Pavillon is a nutshell. A place to read, to write, perchance to dream.” André Querton