HALLES, a cultural distribution, BE

Following a competition, we were commissioned by the French Community of Belgium and Les Halles de Schaerbeek to redesign the entrance to the Les Halles performance centre. The entrance had been problematical as the wide variety of events were organized entering the building at different locations, undermining the identity of the building. So we considered the various types of event held there and came up with a strategy to organize one single entrance for multiple events.

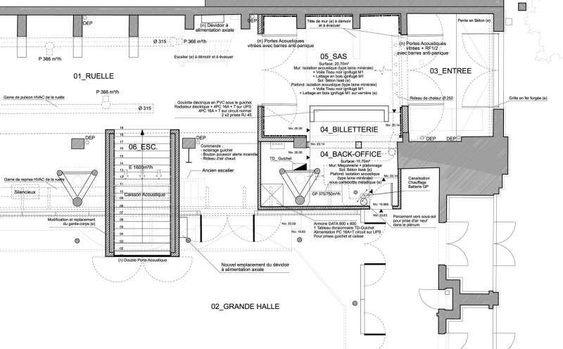
Following a competition, we were commissioned by the French Community of Belgium and Les Halles de Schaerbeek to redesign the entrance to the Les Halles performance centre. The entrance had been problematical as the wide variety of events were organized entering the building at different locations, undermining the identity of the building. So we considered the various types of event held there and came up with a strategy to organize one single entrance for multiple events.

We created a corridor leading to the various event spaces, which have ‘airlocks’ to acoustically isolate simultaneous performances. Known as La Ruelle, this covered side-street extends the arts centre into the public sphere, just as Les Halles, – the market hall – was originally built as an extension of this former commercial area. Once rather forgotten during the day, the neighbourhood now constantly buzzes with social and cultural life. La Ruelle has re-established the links between the surrounding streets and neighbourhoods, connecting them with interior and hidden spaces. To reopen this passageway, we needed to uncover it, as the glass roof had been obscured. In order to incorporate art into the fabric of the building, we worked closely with Joelle Tuerlinckx. Much of her contribution is invisible and inaudible, but through our collaboration she has made her mark on the building. Her one visible artwork puts the focus on the ‘non-place’; its location on the street reinforces La Ruelle's opening statement and echoes its twin, which is located in Palestine. Her integrative approach brings Les Halles into the street and offers it to the world.