TILLEULS, a fresh contemporary twist, BE

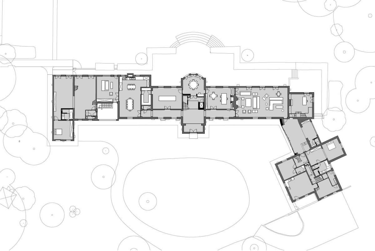
Our clients acquired this classical-style house located within a magnificent park and, understandably, wanted to move in as quickly as possible. Our job was to bolster the relationship between the building and its natural surroundings with a minimum of architectural additions. The classical feel was retained, but a fresh contemporary twist was added to brings more natural light into the building without ‘touching’ the main elevations.

Our clients acquired this classical-style house located within a magnificent park and, understandably, wanted to move in as quickly as possible. Our job was to bolster the relationship between the building and its natural surroundings with a minimum of architectural additions. The classical feel was retained, but a fresh contemporary twist was added to brings more natural light into the building without ‘touching’ the main elevations.

“We asked to Charly and his team to help us in the renovation of our house. This was heavy work as we needed to fully automate the house to be in line with the most up to-date systems, to include new lighting systems, new bathrooms, a new kitchen, new wooden floors, new acoustic ceilings, new heating systems and a new staircase including a new lift... We received a very close follow-up from Charly and his team thru the whole process, with creative solutions when needed, maximum availability and opened minded spirit. Indeed, they followed the work on a day to day basis of all the different groups of skilled workers with a lot a professionalism and they intervened when necessary when it was not up to our standards. They followed the execution of the contract and the financial conditions through the whole process and negotiated for us all the necessary adaptations when necessary. In conclusion, Charly and his team do their job in an outstanding way, they are extremely hands-on, almost available 24h a day and 7 days a week. They react very quickly when there are some issues. They are very focused on the work while creating a very friendly atmosphere. It is a pleasure working with them. We can only advice to our friends to work with them.” Pierre Drion