PAUP, an extension to reinforce unity, BE

Buildings with strong identities have their own unique set of challenges.

Buildings with strong identities have their own unique set of challenges.

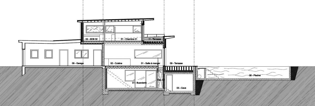
With this project, we strove to strengthen the visual individualism of this house while preserving its architectural identity. The clients had fallen in love with the building - they didn’t want to change a thing. The only additions were bedrooms and, as they were self-confessed foodies, a large open-plan kitchen. The slopes and angular recesses of the split-level roof, the addition of terraces at first-floor level and the pattern of black openings against a white background provide a stark contrast that dial up the distinctiveness of the building and give the clients yet another thing to love about their new abode.